Skip to main content

Archives

Geen archieven om te tonen.

Categories

  • Geen categorieën

Impressie bouwnummer 0.13

VERKOCHT

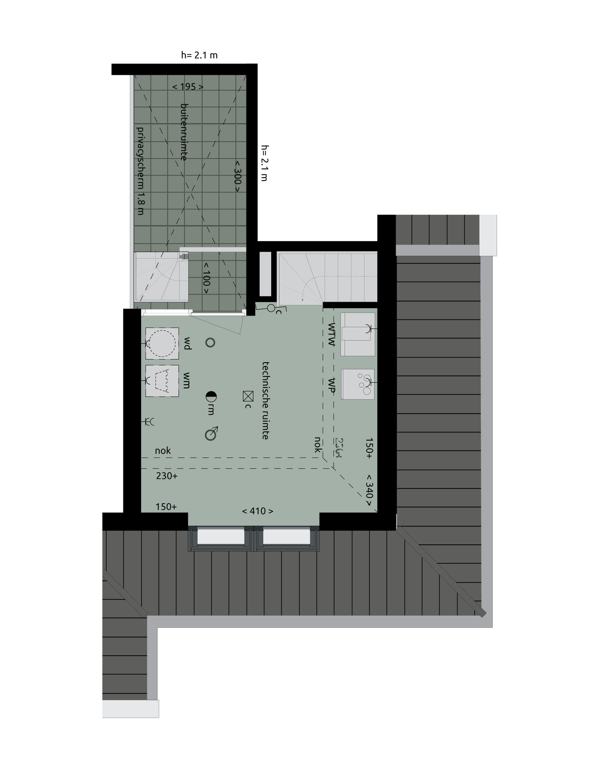
Stadswoningen 0.14

De stoere stadswoningen bieden je alle gemak die je kunt wensen. Een lichte woonkamer, open keuken, moderne badkamer en twee slaapkamers. Maar de kers op de taart is jouw eigen dakterras, waar je optimaal geniet van iedere zonnige dag.

Kenmerken

  • Bouwnummers: 0.14
  • Gebruiksoppervlakte: 86 m2
  • Buitenruimte: Terras
  • Oriëntatie buitenruimte: Zuidwest
  • VON-Prijs € 485.000,00

BEGANE GROND

EERSTE VERDIEPING

TWEEDE VERDIEPING